Staplegrove Road, Taunton
Offers In Excess Of
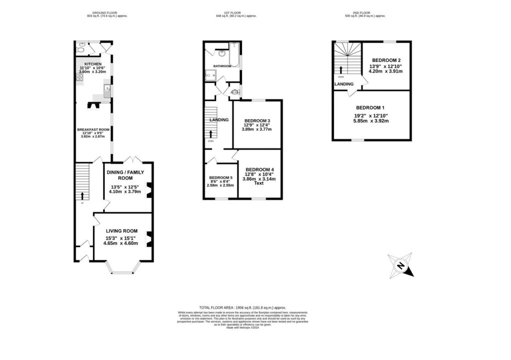
In this popular location within easy level walking distance of the centre of town is this well presented and spacious 5 bedroomed mid-terraced period house arranged over 3 floors with 2 reception rooms and large enclosed South-West facing garden to rear.
The accommodation comprises Entrance Porch, Entrance Hall, Living Room with open fire, Dining / Family Room with open fireplace and French doors to garden, Breakfast Room with woodburner, Fitted Kitchen with door to garden, Cloakroom, 3 Bedrooms on 1st floor, Family Bathroom with separate shower, Separate WC and 2 further double Bedrooms on 2nd floor.
- Council tax band C
- Mobile availability - visit checker.ofcom.org.uk for specific details
- What3words: ///shunts.stays.bets
For clarification, we wish to inform prospective purchasers that: these particulars are set out as a general outline only for the guidance of intended purchasers and do not constitute, nor constitute part of, an offer or contract; all descriptions, dimensions, references to condition and necessary permission for use and occupation and other details, are given without responsibility and any intending purchasers should not rely on them as statements or representation of fact, but must satisfy themselves by inspection or otherwise as to the correctness of each of them. No person in the employment of Robert Cooney has any authority to make or give any representation or warranty whatever in relation to this property; we have not carried out a detailed survey nor tested the services, appliances and specific fittings.

Interested in this property?
We would love to hear from you
GET IN TOUCH



























