Ashleigh Gardens, Chip Lane, Taunton
Chip Lane
In this popular location within easy level walking distance of the centre of town and train station is this 3 double bedroomed semi-detached house with enclosed garden to rear, useful store and driveway parking. No onward chain.
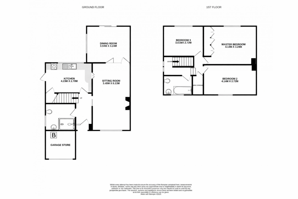
The accommodation comprises Entrance Hall, Living Room, Dining Room with door to garden, Kitchen with pantry and door to garden, downstairs Shower Room, Master Bedroom with fitted wardrobes, 2 further double Bedrooms and Family Bathroom.
Taunton, the County Town of Somerset is a bustling, forward-looking town with excellent amenities, a good selection of independent and high street shops, distinctive restaurants, cafés, a wealth of history and sporting facilities including the County Cricket Ground.
Long Run Meadow and French Weir Park are also a short walk away with its vibrant cafe and outdoor pursuits hub.
Taunton benefits from a main line railway station linking to London Paddington in less than 2 hours and excellent communications for the M5 motorway at junction 25, situated on the eastern side of the town.
Taunton also offers a good selection of both state and independent schools including Castle School, Taunton School, King’s and Queen’s Colleges and Richard Huish Sixth Form College.
- Council tax band D
- Mobile availability - visit checker.ofcom.org.uk for specific details
- What3words: ///bottom.animal.dated
For clarification, we wish to inform prospective purchasers that: these particulars are set out as a general outline only for the guidance of intended purchasers and do not constitute, nor constitute part of, an offer or contract; all descriptions, dimensions, references to condition and necessary permission for use and occupation and other details, are given without responsibility and any intending purchasers should not rely on them as statements or representation of fact, but must satisfy themselves by inspection or otherwise as to the correctness of each of them. No person in the employment of Robert Cooney has any authority to make or give any representation or warranty whatever in relation to this property; we have not carried out a detailed survey nor tested the services, appliances and specific fittings.

Interested in this property?
We would love to hear from you
GET IN TOUCH
